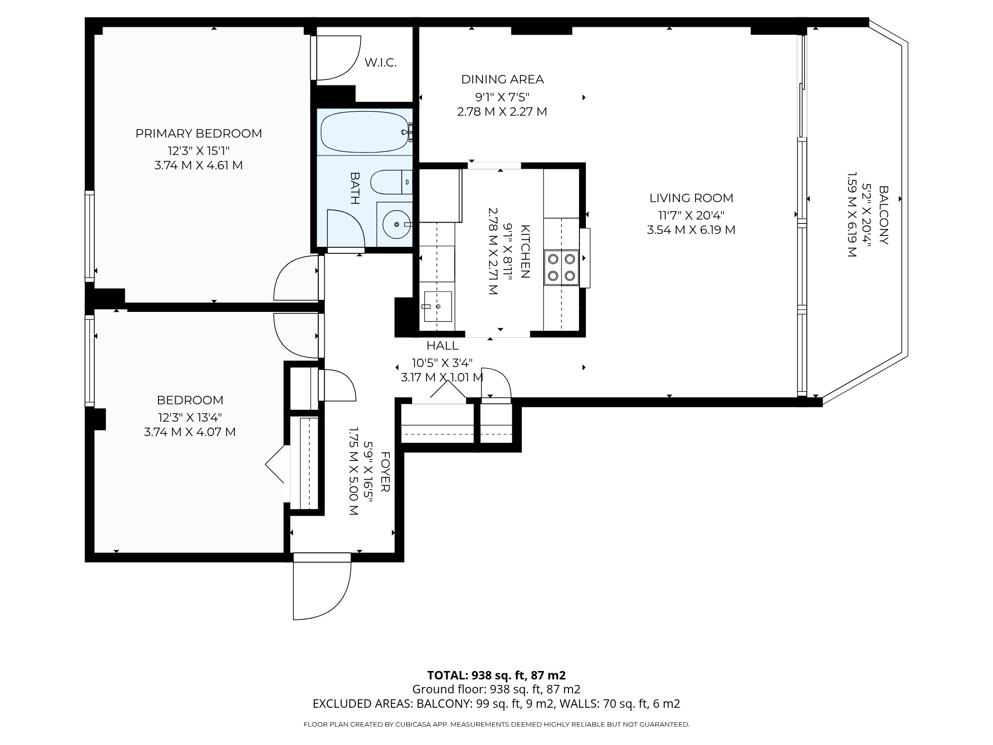
Welcome to Suite 1105 at Sedona Place offering the largest, bright and spacious 2 bedroom + Den unit. A unique feature to this suite is that there are windows facing both East and West so it is full of natural light. Everything is newly renovated with new flooring, upgraded electrical, a new Bathroom and a gorgeous Kitchen with walk through and pass through. Lots of Closet and cabinet space. Parking included. The Building has recently updated the hallways and lobby which enhances the building's appeal, not to mention a live-in superintendent providing day-to-day maintenance and support. Situated right on vibrant Yonge Street, you're just steps from transit, shops, restaurants, cafes, and parks - Newtonbrook Park Trail is just steps away and connects with other parks including a 19 hectare park that features a naturalized ravine with a trail & the North York Hydro Greenspace ideal to exercise with your BFF running partner or better yet your four-legged BF. Just minutes to Finch Subway Station, this location offers unbeatable convenience in a walkable, well-connected North York neighbourhood. A perfect choice for first-time buyers or those seeking affordable city living.





